Call us

Office | Fax: 902-752-7227

Our Location

351 Stellarton Road. New Glasgow

Send Message

info@resultsrealtyatlantic.com

206 Lakeview Road Lakeview, Nova Scotia B4C 4C8

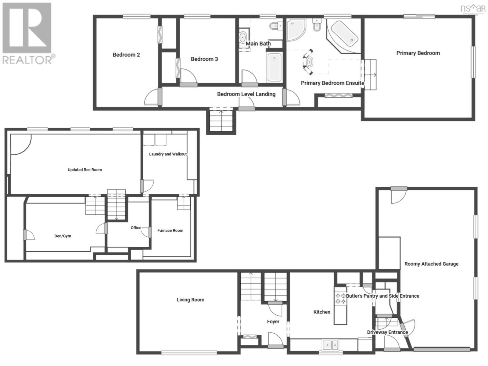
3 Bedroom 2 Bathroom 2,094 ft2
Landscaped

$549,900

Back to the market with some updates! This family-sized back split in peaceful Lakeview packs a ton of space (it's bigger than it looks!) on a large lot with views of Rocky Lake and lots of mature gardens. Inside, the main floor has a large West-facing living room, classic kitchen and dining room, then splits into the spacious upper floor (two large BRs, main bath, and huge Primary Suite w/ 5pc ensuite, vaulted ceilings, and private door to the back deck) and the recently-updated lower level, with spacious rec room, large laundry room with walkout, separate office, cold room, and a great flexible den that could easily be a gym. The backyard has a two-sty accessory building that has a finished 2nd level and acts as a great large shed on the main. This home has a TON of potential, city water, loads of parking in the paved driveway and an oversized attached garage. (id:45785)

Property Details

MLS® Number 202524902
Property Type Single Family
Community Name Lakeview
Amenities Near By Shopping
Community Features School Bus
Equipment Type Water Heater
Features Level
Rental Equipment Type Water Heater
View Type Lake View

Building

Bathroom Total 2
Bedrooms Above Ground 3
Bedrooms Total 3
Appliances Cooktop, Oven, Dishwasher, Dryer, Washer, Microwave Range Hood Combo, Refrigerator
Basement Development Finished
Basement Features Walk Out
Basement Type Full (finished)
Constructed Date 1971
Construction Style Attachment Detached
Construction Style Split Level Backsplit
Exterior Finish Aluminum Siding, Vinyl
Flooring Type Ceramic Tile, Laminate, Linoleum, Tile, Vinyl Plank
Foundation Type Poured Concrete
Stories Total 2
Size Interior 2,094 Ft2
Total Finished Area 2094 Sqft
Type House
Utility Water Municipal Water

Parking

Garage
Attached Garage
Detached Garage
Paved Yard

Land

Acreage No
Land Amenities Shopping
Landscape Features Landscaped
Sewer Septic System
Size Irregular 0.2663
Size Total 0.2663 Ac
Size Total Text 0.2663 Ac

Rooms

Level Type Dimensions
Second Level Primary Bedroom 16.3x14.3
Second Level Ensuite (# Pieces 2-6) 13.4x11.2-Jog
Second Level Bath (# Pieces 1-6) 9.10x6.7
Second Level Bedroom 13.5x9.4
Second Level Bedroom 9.10x8.7
Lower Level Recreational, Games Room 26.9x13.3-Jog
Lower Level Laundry / Bath 13.4x11.5+-Jog
Main Level Foyer 6.10x7.11-Jog
Main Level Living Room 13.5x16.6
Main Level Eat In Kitchen 14.8x13.5

https://www.realtor.ca/real-estate/28942211/206-lakeview-road-lakeview-lakeview

Contact Us

Contact us for more information

Generating Captcha

Matthew Welch

(902) 209-5594
(902) 406-7378
www.halifaxmetrohomes.com/

RE/MAX Nova (Halifax)
397 Bedford Hwy
Halifax, Nova Scotia B3M 2L3

(902) 453-9300
(902) 450-0511
www.remaxnova.com/