Call us

Office | Fax: 902-752-7227

Our Location

351 Stellarton Road. New Glasgow

Send Message

info@resultsrealtyatlantic.com

6 Shadebush Walk Upper Sackville, Nova Scotia B4E 0X8

2 Bedroom 2 Bathroom 1,118 ft2
Bungalow Heat Pump Landscaped

$539,900

Maintenance,

$72.50 Monthly

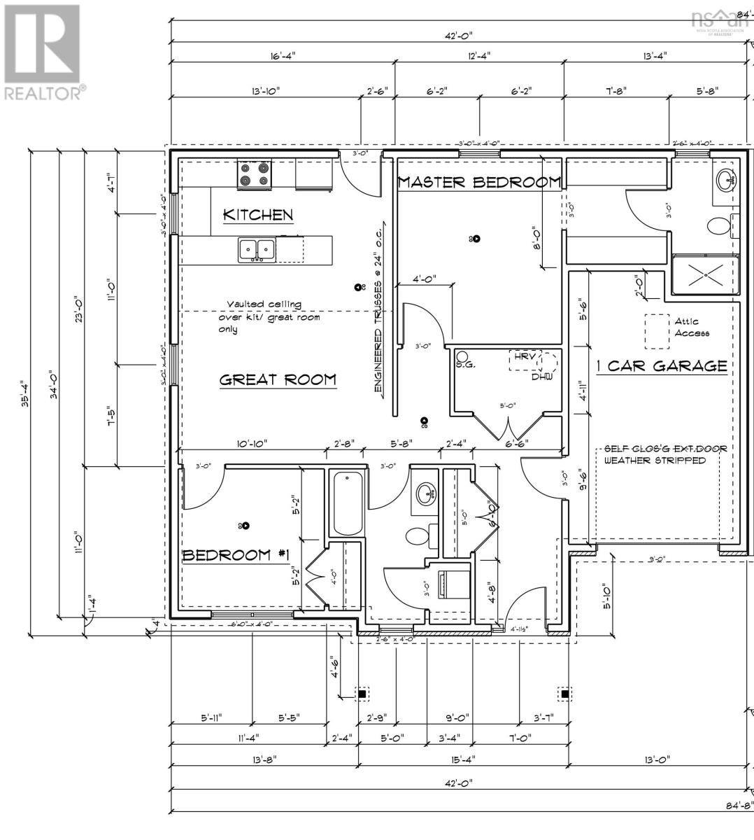
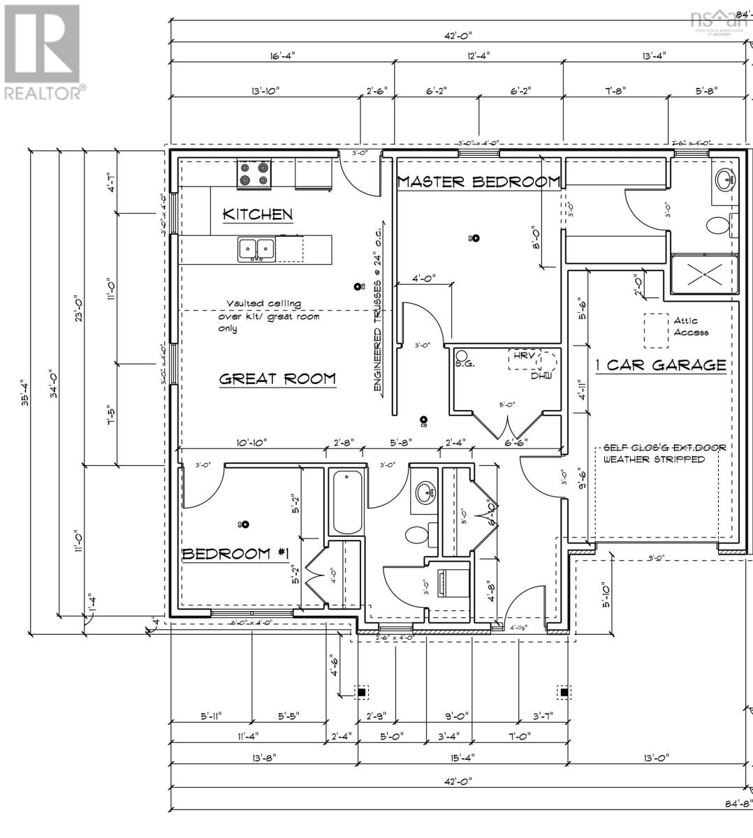
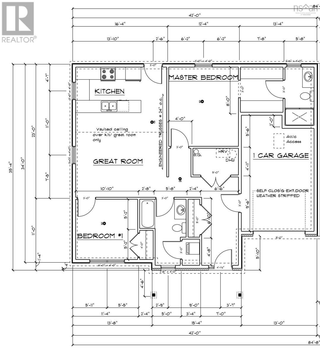
Welcome to Meadow Ridge Estates modern bungalow living at its finest!Just 20 minutes from downtown Halifax and 15 minutes from the airport, this thoughtfully designed homeoffers both convenience and comfort close to all essential amenities. Step inside to find a bright, openconcept main living area with vaulted ceilings and a spacious kitchen featuring abundant cabinetry. Theprimary suite includes a generous walk-through closet leading to a private ensuite with a 5 foot shower.A second full bathroom, guest bedroom, main floor laundry, and a large entryway add to the homespracticality. Enjoy outdoor living with a stamped concrete front porch and rear deck, perfect forrelaxing or entertaining. Additional highlights include a single-car garage and an energy-efficientductless heat pump. This home comes complete with HST included in the price and peace of mind provided byan 8-Year LUX Home Warranty. (id:45785)

Property Details

MLS® Number 202521201
Property Type Single Family
Neigbourhood Meadow Ridge Estates
Community Name Upper Sackville
Amenities Near By Park, Shopping
Community Features School Bus
Features Level

Building

Bathroom Total 2
Bedrooms Above Ground 2
Bedrooms Total 2
Architectural Style Bungalow
Basement Type None
Construction Style Attachment Semi-detached
Cooling Type Heat Pump
Exterior Finish Stone, Vinyl
Flooring Type Ceramic Tile, Laminate
Foundation Type Concrete Slab
Stories Total 1
Size Interior 1,118 Ft2
Total Finished Area 1118 Sqft
Type House
Utility Water Community Water System, Dug Well, Shared Well

Parking

Garage
Attached Garage
Paved Yard

Land

Acreage No
Land Amenities Park, Shopping
Landscape Features Landscaped
Sewer Unknown
Size Irregular 0.8108
Size Total 0.8108 Ac
Size Total Text 0.8108 Ac

Rooms

Level Type Dimensions
Main Level Kitchen 15.5x8
Main Level Great Room 15.5x15
Main Level Primary Bedroom 12.4x13.2
Main Level Bedroom 10.10x11
Main Level Laundry Room 4x3.4
Main Level Utility Room 4.11x7
Main Level Foyer 6.6x10.9
Main Level Other garage 13x20-jog

https://www.realtor.ca/real-estate/28757344/6-shadebush-walk-upper-sackville-upper-sackville

Contact Us

Contact us for more information

Generating Captcha

Bill Repchull

(902) 456-9365
(902) 252-3402
www.repchullrealtyteam.com/

Keller Williams Select Realty
222 Waterfront Drive, Suite 106
Bedford, Nova Scotia B4A 0H3

(902) 407-7373
(902) 407-7374
www.kwhalifax.com/