Live, work, host, and createall within one beautifully designed structure offering a main residence, private apartment, professional office suite, and expansive workshop. A rare and remarkable offering just steps from the charming heart of Canning where you can walk to all amenities; 15 minutes from Wolfville and Acadia University and excellent access to the highway. This distinctive waterfront property is a harmonious blend of architectural elegance and thoughtful design. Set along the banks of the Habitant River, the residence is nestled among beautifully landscaped grounds filled with mature flowering trees and shrubs, and spacious gardens, offering a tranquil retreat. The main home, an artful two-bedroom, two-bathroom masterpiece, is flooded with natural light and features a striking west-facing solarium, open concept living space with a sizable loft with every part bathed in natural light. A south-facing kitchen overlooks the lush gardens, while elegant architectural details and solid ICF construction ensure both beauty and energy efficiency. This exceptional property offers a rare versatility with four distinct spaces. Attached to the main house is a dedicated two-office suite with accessible washroom, kitchenette and private entrance providing an ideal space for a home-based business or studio. An impressive two-storey high garage/shop adds further opportunity and flexibility. A self-contained bright, one-bedroom apartment on the second floor features warm cork flooring and captivating views. Every element of this home has been designed for elegance, function, and connection to its natural surroundingsa private sanctuary with unlimited potential in one of Nova Scotias most vibrant and sought-after communities. (id:45785)
| MLS® Number | 202516976 |
| Property Type | Single Family |
| Community Name | Canning |
| Amenities Near By | Park, Shopping, Beach |
| Water Front Type | Waterfront On River |
| Bathroom Total | 4 |
| Bedrooms Above Ground | 5 |
| Bedrooms Total | 5 |
| Basement Type | None |
| Constructed Date | 2008 |
| Construction Style Attachment | Detached |
| Exterior Finish | Stucco |
| Flooring Type | Ceramic Tile, Cork |
| Foundation Type | Concrete Slab |
| Half Bath Total | 1 |
| Stories Total | 2 |
| Size Interior | 3,802 Ft2 |
| Total Finished Area | 3802 Sqft |
| Type | House |
| Utility Water | Municipal Water |
| Garage | |
| Attached Garage | |
| Gravel | |
| Parking Space(s) |
| Acreage | Yes |
| Land Amenities | Park, Shopping, Beach |
| Sewer | Municipal Sewage System |
| Size Irregular | 2.08 |
| Size Total | 2.08 Ac |
| Size Total Text | 2.08 Ac |
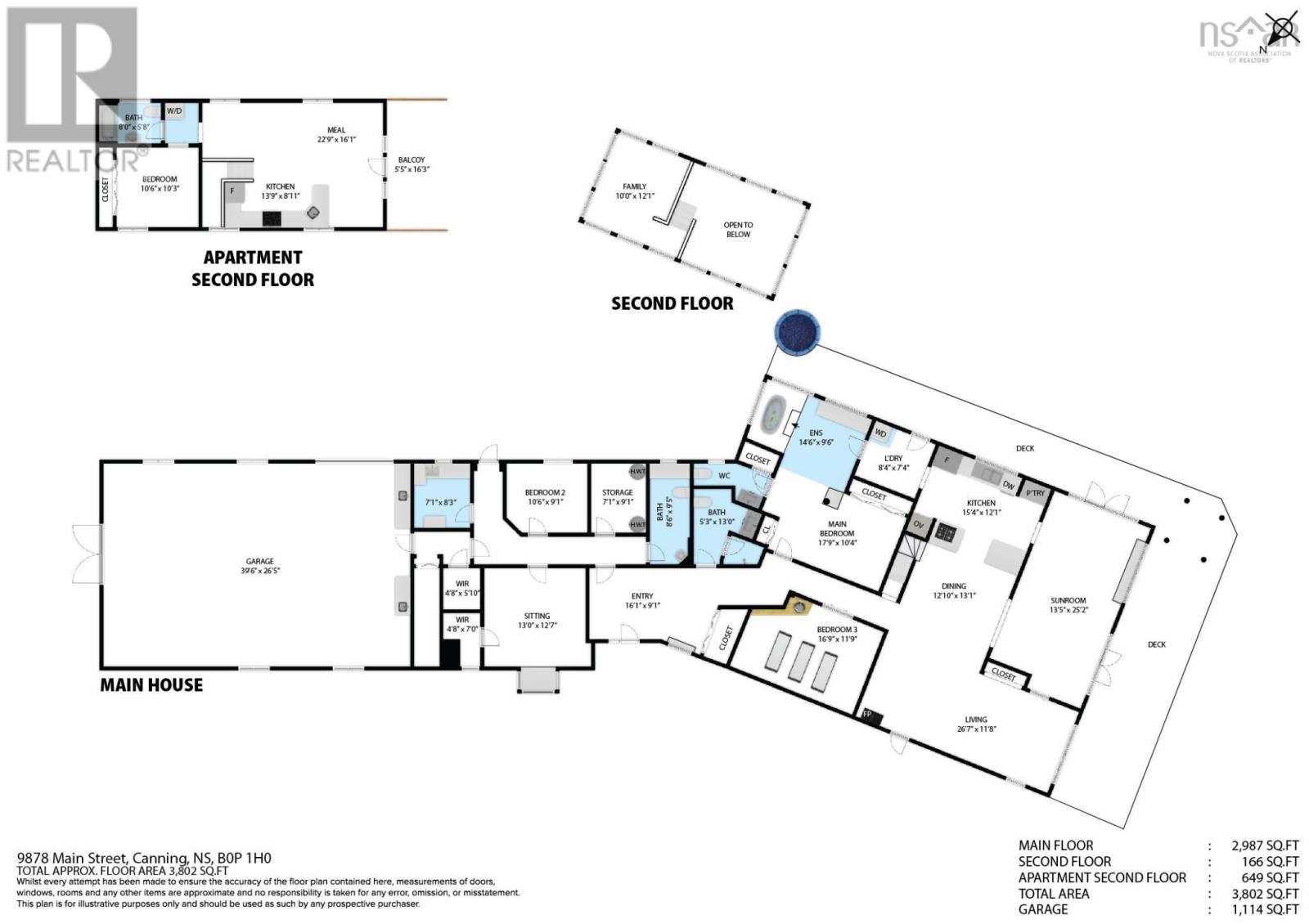
| Level | Type | Length | Width | Dimensions |
|---|---|---|---|---|
| Second Level | Other | Flex room 10.0 x 12.1 | ||
| Second Level | Family Room | 22.9x16.1 | ||
| Second Level | Kitchen | Apt 13.9 x 8.11 | ||
| Second Level | Bath (# Pieces 1-6) | 8x5.8 | ||
| Second Level | Bedroom | 10.6x10.3 | ||
| Main Level | Foyer | 16.1x12.7 | ||
| Main Level | Living Room | 26.7x11.8 | ||
| Main Level | Dining Room | 12.10 x 13.1 | ||
| Main Level | Kitchen | 15.4 x 12.1 | ||
| Main Level | Sunroom | 13.5x25.2 | ||
| Main Level | Primary Bedroom | 17.9x10.4+14.6x9.6 | ||
| Main Level | Ensuite (# Pieces 2-6) | 14.6x9.6 | ||
| Main Level | Bedroom | 13x12.7 | ||
| Main Level | Bedroom | 10.6x9.1 | ||
| Main Level | Bath (# Pieces 1-6) | 5.3 x 13.0 | ||
| Main Level | Bath (# Pieces 1-6) | 8.6 x 9.5 | ||
| Main Level | Other | 7.1 x 8.3 | ||
| Main Level | Laundry Room | 7.4x8.4 |
https://www.realtor.ca/real-estate/28575755/9878-main-street-canning-canning
Contact us for more information
Christa Southcott
(902) 422-5552
(902) 422-5562
https://novascotia.evrealestate.com/
Jennifer O'neil
(902) 422-5552
(902) 422-5562
https://novascotia.evrealestate.com/
Janna Pantella